Meridian Ranch

The Archer

Meridian Ranch

$486,960

Unfinished Basement Included, Optional Finish

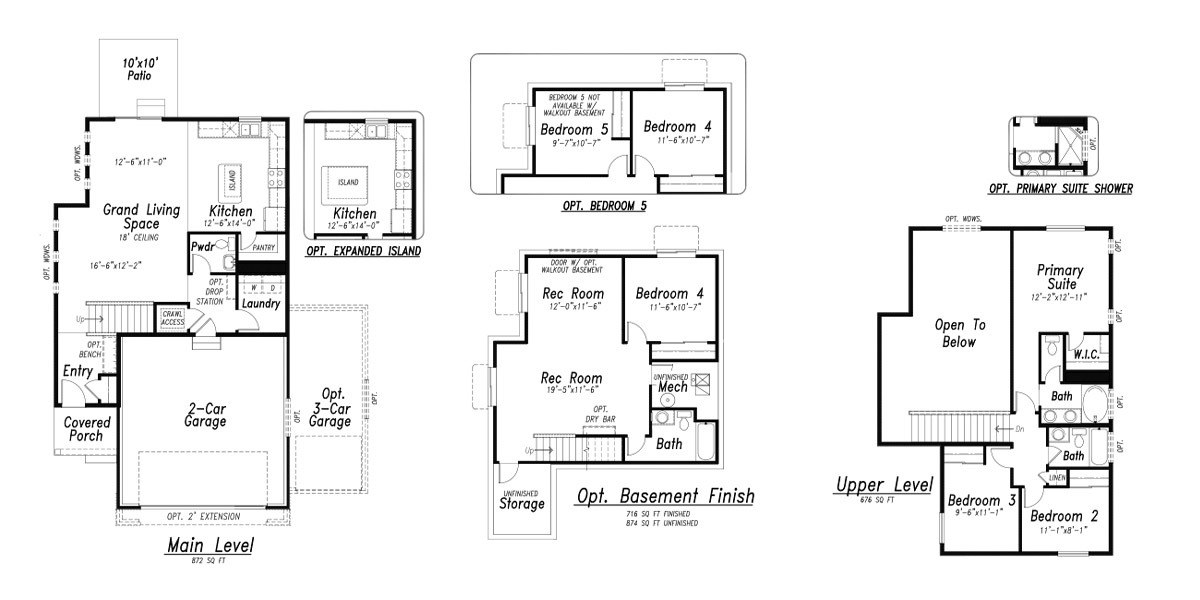
Blue Sky Series home available only in The Enclave. Stylish, mid-century modern home offering an 18' ceiling in the grand living space, open kitchen plan with center island and walk-in pantry, and sli…

Floor Plan

Features and Options

square footage

Square feet

1,548 – 2,422

square footage

Bedrooms

3 – 5

square footage

Bathrooms

2.5 – 3.5

square footage

Car Garage

2 – 3

plan series

Plan Series

Blue Sky

Two-Story

Click the image below to begin your virtual tour

Contact Your Community Sales Manager for More Information

If your question is regarding a specific community, please feel free to reach out to the community sales team directly during the following hours:

Monday-Saturday, 10am-5pm
Sunday, 12pm-5pm

Roxanne Nice

Meridian Ranch Sales Manager

719.418.3969